top of page
Semi Truck Parking Lot and Truck Hotel
Dallas, Texas USA
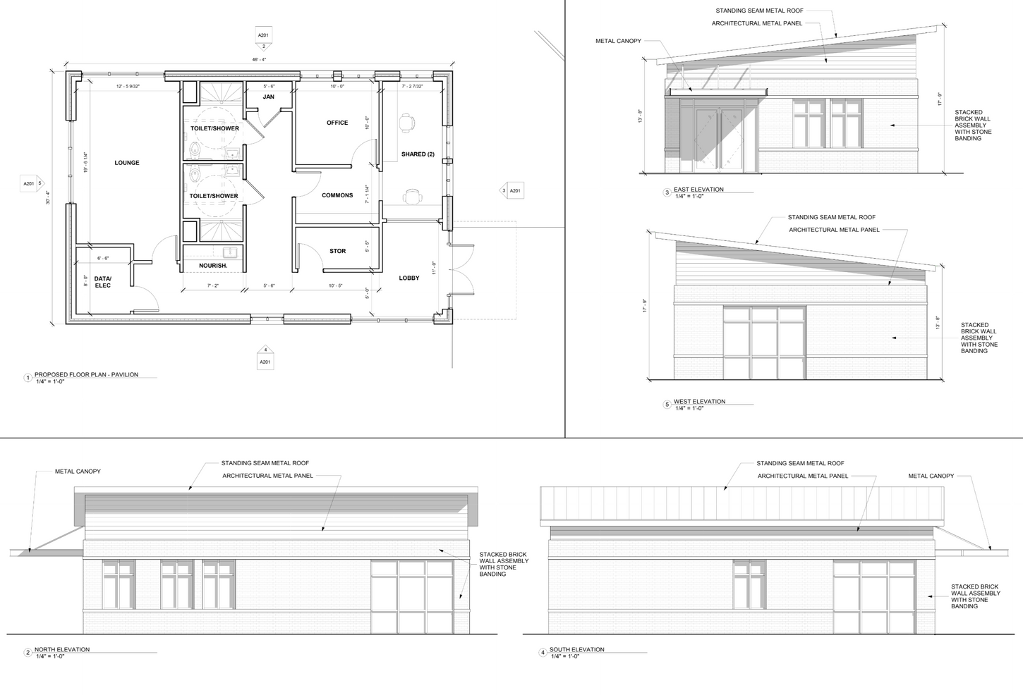
The Semi Truck Parking Lot project was designed to develop a secure, efficient, and easily accessible facility designed to accommodate long-haul trucks and freight vehicles. Covering 5 acres, the parking lot will provide a designated area for semi-trucks to park safely, reducing congestion on surrounding roadways, improving traffic flow, and offering truckers a reliable space to rest during long trips.
This Semi Truck Parking Lot will address a critical need in the trucking industry, providing a safe, convenient, and well-maintained space for drivers to rest, park, and perform essential truck services. By reducing truck congestion on local streets and highways, the project will improve both traffic safety and operational efficiency, making it a valuable addition to the transportation infrastructure.
Client:
Private Client
Size:
1,300 sqft
Project Status:
Completed
Completion Date:
2022
bottom of page





